Filed Under Education

Church Fine Arts Building

Designed by modernist architect Richard Neutra, opened in 1960, and named for UNR professor James Edward Church.

The J. E. Church Fine Arts Building, designed by world-famous modernist architect Richard Neutra, first opened in the fall of 1960. It was constructed to unite the departments of Speech Communications and Theater, Art, and Music under one modern roof. The entire art department originally occupied battered war-surplus Quonset huts in a corner of campus known as “Skunk Hollow.” At the recommendation of tireless department chair Craig J. Sheppard, the new fine arts building was named in honor of accomplished Professor James Edward Church.

Dr. Church was a pioneer of snow science, a professor of classical languages, and the first professor of art appreciation at the University. He joined the University faculty in 1892 and served as a faculty member for 47 years. He remained an active part of the university community even after his retirement and was an avid supporter of the arts. When his efforts to establish an art museum on campus were denied, he co-founded the Nevada Art Gallery on Ralston Street in 1931. That institution later evolved into the renowned Nevada Museum of Art. Church passed away shortly after construction began on the fine arts building, and his and his wife’s ashes were interred in its cornerstone. In 1977, the building was rededicated to Dr. Church. The short ceremony recognized the many contributions of the late professor and sought to address the misnomer Church “of” Fine Arts.

The first exhibition in Church Fine Arts was called “70 by 50”, and featured 70 modern works by 50 popular artists. Among those featured were Picasso, Degas, and Matisse, and the artwork was largely sourced from the private collection of Reno businessman Wilbur D. May. The first theater performance in the building, Eugene O’Neill’s “Ah, Wilderness!” took place in October of 1960. The building was appropriately called the finest of its kind on modern campuses of the day.

Additions in the mid-1980s created more classroom and gallery space, as well as the Nightingale Concert Hall and the Redfield Studio Theatre. Further renovations in 2012 saw the construction of the atrium entrance on Virginia Street, as well as updates to the Redfield Proscenium Theatre and the Front Door Gallery. As part of the School of the Arts Building Initiative, and to keep up with the ever-constant demand for a well-equipped arts education, even more modern updates and additions are planned for the near future.

Audio

A new professor in a new building Interviewed in 2015 by Safiyyah Bazemore, retired UNR art professor Jim McCormick recalls his first impressions of the Church Fine Arts building in 1960 and one of the unforeseen advantages of its location. Date: 2015
Perfecting Richard Neutra's design Interviewed in 2015 by Safiyyah Bazemore, retired UNR art professor Jim McCormick explains how some of his colleagues helped Church Fine Arts architect Richard Neutra perfect the design of the building's courtyard. Date: 2015

Images

Building Exterior
Building Exterior The new fine arts building was built at a cost of $1.2 million, and was called a "transition between the brick and concrete of the present campus and new materials" by the Reno Evening Gazette. Source: University Archives, University of Nevada, Reno Libraries Date: 1967
Dr. Church at his desk
Dr. Church at his desk At the time of his tenure, Dr. James E. Church had received more international recognition than any other professor to serve at the University. Before passing away, he turned the first shovelful of dirt for the construction of the new fine arts building. Source: University Archives, University of Nevada, Reno Libraries Date: 1940
First Art Exhibition, 1960
First Art Exhibition, 1960 Art department chair Craig Sheppard organized the inaugural exhibition, "70 by 50," and it attracted over 1,000 visitors within the first five days. Source: University Digital Collections, University of Nevada, Reno Libraries Date: 1960
Virginia Street View, 1960
Virginia Street View, 1960 Los Angeles-based architect Richard Neutra provided the original design for the building, which included a sculpture court, ample classroom and studio space, and a modern theatre separating the department wings. Source: University Archives, University of Nevada, Reno Libraries Date: 1960
First Performance, 1960
First Performance, 1960 Nearly 200 guests attended the first night of "Ah, Wilderness!" in the Church Fine Arts Theater, which was later renamed the Nell J. Redfield Proscenium Theater. Source: University Archives, University of Nevada, Reno Libraries Date: 1960
Woman at Piano, 1970s
Woman at Piano, 1970s The building provided much-needed facilities for the steadily growing departments of Art, Music, and Speech and Theater. These upgraded facilities allowed Church Fine Arts to host the famed Reno Jazz Festival each year. Source: University Archives, University of Nevada, Reno Libraries Date: 1970s
Student Art Show, 1980
Student Art Show, 1980 An early art show in the Sheppard Contemporary Gallery featured student works. The art department started out with only 30 students but now has over 400 undergraduates and graduates studying a wide range of fine art emphases. Source: University Archives, University of Nevada, Reno Libraries Date: 1980
Construction, 1985
Construction, 1985 Substantial expansions to Church Fine Arts in the 1980s created the Nightingale Concert Hall and the Redfield Studio Theatre. The small but flexible Redfield Studio Theatre houses the Nevada Repertory Company, the play producing unit of the University. Mack Social Sciences, Ansari Business, and the old Getchell Library are visible in the background. Source: University Archives, University of Nevada, Reno Libraries Date: 1985
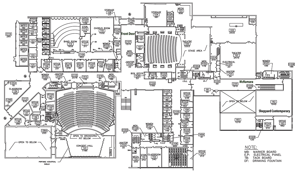
Functional layout
Functional layout For many years, the first floor of Church Fine Arts featured the three art galleries: the Front Door Gallery, McNamara Gallery, and the Sheppard Contemporary Gallery. The art department's permanent collection features a large print collection, works of notable regional artists, and diverse centuries-old art. Source: University of Nevada, Reno
Nell J. Redfield Proscenuim Theatre
Nell J. Redfield Proscenuim Theatre 2012 updates to the theatre introduced a raked, or stadium-style, seating arrangement that allowed for a better view of the stage. A new acoustics system and a lighting lab were also part of the renovations. Source: University Archives, University of Nevada, Reno Libraries
Atrium Entrance
Atrium Entrance The modern atrium entrance on North Virginia Street was constructed in 2012 as part of "Act One" of the School of the Arts Building Initiative. Source: University of Nevada, Reno Date: 2012

Location

Map

Metadata

Safiyyah Bazemore, “Church Fine Arts Building: Designed by modernist architect Richard Neutra, opened in 1960, and named for UNR professor James Edward Church.,” Reno Historical, accessed April 30, 2026, http://renohistorical.org.historicreno.org/items/show/122.